The Archibald – Gosford

we provide innovative
structural solutions

The Archibald - Gosford

The Archibald

Project Overview
The development consists of two high-rise towers  built upon a shared multi-level podium.

  • Total Height: 28 storeys (East Tower) and 27 storeys (West Tower).

  • Composition: The structure consists of 2 towers with common podium, 28 storey high rises with roof and 1 basement level,130 hotel rooms, 323 residential apartments, Ground floor Pub + Hotel Lobby + Retail, Hotel foyer at Level 01, and a striking 960 m² rooftop “Skybar.”

  • Key Stakeholders: Developed and built by ALAND; Architecture by Dickson Rothschild (Concept) and Place Studio (Delivery); Structural Engineering by JSBC Consulting.

Architectural Form
The architectural language is a tribute to the local geography, specifically the sailing culture of the nearby Brisbane Water.

  • Form & Massing: The towers feature striking white, sail-like curves. This “coastal luxury” aesthetic is achieved through articulated precast concrete and energy-efficient glazing.

  • Facade Treatment: A monochrome motif is softened by vertical greenery and external plantings integrated into the balcony systems. The use of floor-to-ceiling windows, maximizes natural light and views.

  • Public Domain Integration: The ground floor acts as a “vertical village,” featuring a large pub and retail precinct designed to draw pedestrian traffic from Donnison and Mann Streets, integrating the private development with Gosford’s urban fabric.

Engineering The Archibald: Our Structural Solutions

As the lead consulting structural engineers for The Archibald in Gosford, NSW, JSBC Consulting was tasked with delivering the structural framework for this landmark twin-tower development. From navigating complex waterfront ground conditions to optimizing high-rise load paths, our team engineered practical, high-performance solutions to bring this architectural vision to life.

Below is a snapshot of some of our notable structural engineering solutions on this flagship project:

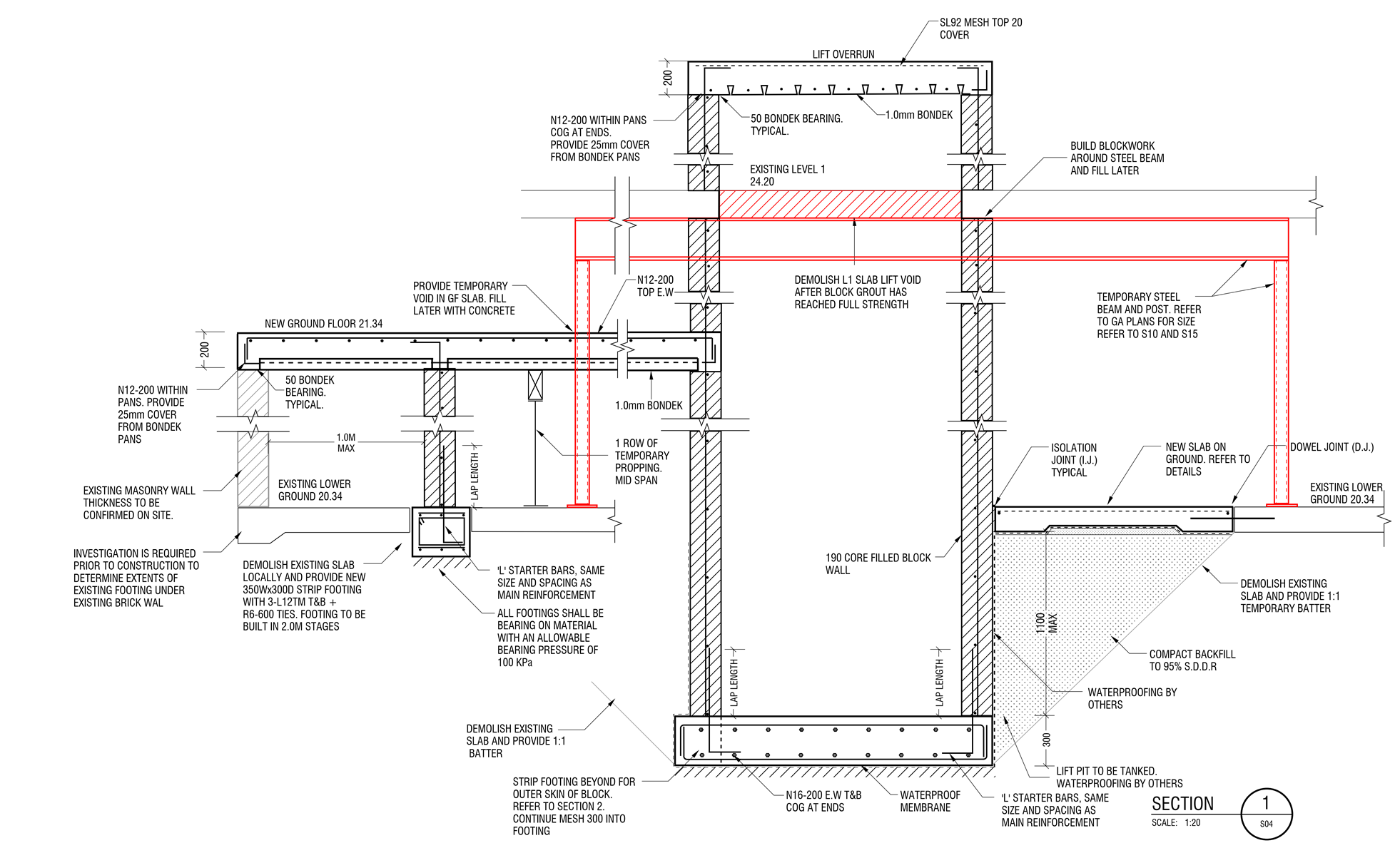
1. Overcoming Waterfront Challenges: Specialized Foundation Design The site’s proximity to Brisbane Water and a high water table necessitated a highly specialized foundation approach. Rather than relying on a standard basement design, JSBC Consulting engineered a Raft Slab on Piles to actively address significant hydrostatic (uplift) pressure and poor soil stability.

  • Hydrostatic Resistance: We designed a reinforced concrete raft—reaching thicknesses up to 1.5 meters thick under cores —to provide the necessary dead weight to effectively counter buoyancy.

  • Tension Piling: We engineered deep piles designed to work in tension. These piles effectively “pin” the raft to the underlying Hawkesbury sandstone bedrock, preventing the massive structure from lifting as groundwater levels press upwards.

2. Bridging the Gap: The Post-Tensioned Transfer Slab At the heart of The Archibald’s structural integrity lies a masterfully engineered transfer slab, designed by our team to bridge the gap between two entirely distinct architectural layouts: the residential towers above and the open commercial and car parking zones below.

  • The Structural “Bridge”: Our engineering team implemented a high-strength, post-tensioned transfer level. This massive horizontal element captures the immense vertical loads descending from the 28-storey residential towers and redistributes them seamlessly into the podium’s reinforced column network.

Our team has extensive Tier 1 background experience

Prime Macquarie Park

we provide innovative
structural solutions

Prime Macquarie Park

Engineering Prime Macquarie Park: Scale, Complexity, and Iconic Design

As the lead structural engineering consultants for Prime at 101 Waterloo Road in Macquarie Park, JSBC Consulting delivered comprehensive structural design from initial concept through to final completion.

This massive mixed-use precinct features 680 apartments and 15 retail spaces spread across four distinct 22-storey towers. Sitting atop a common podium and a deep two-level basement, the project demanded rigorous structural coordination, highly efficient construction methodologies, and out-of-the-box engineering to support its standout architectural features.

Below is a snapshot of our structural engineering solutions and scope on this major development:

The Architectural Centerpiece: Engineering the Iconic Tripod

The most striking feature of the Prime development is the architectural decision to support one of the 22-storey towers on an iconic, multi-storey tripod structure at the podium level.

  • Complex Load Transfers: Supporting a high-rise on a tripod requires masterful load-path engineering. Our team had to design these massive inclined columns to safely capture and redirect the immense vertical dead loads and live loads from the many storeys above, funnelling them down to a concentrated point at the foundation.

  • Lateral Stability: Beyond just holding the building up, the tripod had to be engineered to resist significant lateral forces, ensuring the tower remains stiff, safe, and comfortable for occupants despite the unconventional support structure at its base.

High-Density Scale & Podium Integration

Delivering four separate 22-storey towers on a single, unified site requires a structural design that prioritizes both safety and construction speed.

  • Common Podium & Subterranean Design: The four towers are tied together by an expansive common podium and two levels of basement car parking. JSBC engineered a robust retention and excavation strategy for the basements, alongside highly efficient post-tensioned slab designs for the podium to accommodate the heavy loads of the retail precinct and public spaces above.

  • Repetition and Efficiency: For the four residential towers, we focused on structural efficiency. By optimizing the concrete core layouts and floor plate designs, we maximized the net lettable area for the developer while streamlining the formwork cycle for the builders, saving valuable time on the construction schedule.

End-to-End Project Delivery

Unlike firms that simply hand over the design, JSBC Consulting remained deeply involved throughout the entire lifecycle of the Prime Macquarie Park development.

  • Concept to Completion: We provided unbroken continuity from the earliest conceptual load planning to the final structural certificates.

  • Site Supervision & Inspections: Our engineers were consistently on-site, conducting inspections of steel reinforcement, post-tensioning, and concrete pours to ensure the built structure perfectly matched our high-performance design specifications.

3D View of The Structural Revit Model

Our team has extensive Tier 1 background experience

One City Square

we provide innovative
structural solutions

One City Square Parramatta

Engineering a “City Within a City”: The Structural Story of One City Square Parramatta

As the geographical centre of Sydney shifts westward, Parramatta is undergoing a historic transformation. At the southern edge of the CBD—an area once dominated by car dealerships and known as ‘Auto Alley’—a visionary masterplanned precinct is rising.

Designed by AJ+C Architects in collaboration with Turner and Oculus, Gateway Parramatta (part of the One City Square precinct by JQZ) encompasses over 62,800m² of Gross Floor Area. As the lead consulting structural engineers for the project, JSBC Consulting was tasked with designing the framework for this massive, multi-sector precinct.

Here is how we engineered the structural backbone that brought this award-winning architectural vision to life.

1. The Challenge of Scale: Three Distinct Towers, One Site

Gateway Parramatta is a highly integrated, mixed-use ecosystem. The project scope required the simultaneous structural design of three distinct buildings:

The 42-Storey Landmark Tower: Clad in a rippling curtain glass wall inspired by the ‘meeting of the waters’ at Parramatta Weir, this tower required a highly rigid lateral stability system to minimize wind sway and support the complex, shifting facade attachments.

The 32-Storey Residential Tower: Architecturally angled to allow sunlight into the public plaza below, this tower features sweeping, curved balconies nodding to Sydney’s bedrock sandstone. JSBC engineered precise cantilevered edge slabs to achieve these organic, sweeping shapes without compromising structural integrity or adding excessive weight.

The 12-Storey Boutique Hotel: Offering 288 rooms, a first-floor function centre, and a rooftop terrace and pool. The rooftop pool demanded highly specialized structural loading, deflection control, and waterproofing integration at the very top of the structure.

2. The Structural “Handshake”: The Colonnaded Podium

The true complexity of Gateway Parramatta lies in how these three distinct towers interact at ground level. The towers rise from a shared, two-storey colonnaded retail and commercial podium that activates a new 2,115m² public plaza.

The Podium Transfer: JSBC engineered a high-strength common podium that serves as the structural “handshake” connecting the developments. This massive structural element acts as a transfer level, capturing the immense vertical loads from the 42-storey, 32-storey, and 12-storey towers above, and redistributing them into the foundation network.
Enabling the Colonnade: By successfully shifting these load paths, our engineering enabled the architect’s vision of an open, colonnaded ground floor—creating the large, column-free spans necessary for retail spaces and pedestrian flow.

3. Deep Urban Excavation: The 5-Storey Basement

Supporting a precinct of this magnitude—and accommodating the parking needs of hundreds of residents and hotel guests—required an immense subterranean footprint. The project is anchored by a massive 5-storey underground basement.

The Geotechnical Reality: Excavating five levels deep in the heart of Parramatta requires highly advanced retention engineering. JSBC designed a robust shoring and retention system to manage intense lateral earth pressures and protect neighboring infrastructure. Furthermore, we implemented a sophisticated foundation strategy to manage the local water table, ensuring the basement remains entirely secure beneath the staggering weight of the structures above.

The Impact: Enabling a Landmark

A project of this scale requires an engineering partner capable of seeing both the granular details—like a rooftop hotel pool or a cantilevered balcony—and the overarching masterplan. By successfully integrating luxury residential, hospitality, and retail into a single, cohesive structural framework, JSBC Consulting provided the backbone that allowed this $80M+ gateway landmark to become a reality.

Our team has extensive Tier 1 background experience

11-17 Columbia Lane

we provide innovative
structural solutions

Grand Park at 11-17 Columbia Lane Homebush, Sydney

Engineering Grand Park: Twin Towers in Sydney’s Inner West


As the lead structural engineers for Grand Park (located at 11-17 Columbia Lane, Homebush), JSBC Consulting designed the framework for this major high-density residential precinct developed by JQZ.

Featuring 360 luxury apartments spread across twin 25-storey towers, this project required highly efficient structural solutions to balance the architect’s striking, sculptural facades with rapid constructability.

Here is a snapshot of our structural engineering scope on the project:

1. Structural Efficiency at 25 Storeys

Designing twin 25-storey towers side-by-side presents distinct challenges regarding wind loading and lateral stability. JSBC engineered highly optimized concrete cores and ductile shear walls to ensure occupant comfort and structural stiffness. We also designed complex, cantilevered edge slabs to support the towers’ distinct, sculptural facade profiles without compromising the formwork cycle during construction.

2. Supporting an “Urban Oasis”

The architectural centerpiece of Grand Park is its expansive, elevated landscaped ground floor podium, designed to act as a “central oasis” for residents.

Heavy Load Engineering: Supporting mature trees, deep soil profiles, and water retention systems requires massive load-bearing capacity. JSBC designed a high-strength, post-tensioned podium slab capable of safely transferring these immense dead loads into the foundation network below.

 

Artist Impression of the building

Our team has extensive Tier 1 background experience

52 Odea Avenue Waterloo

Structural engineering for
large scale complex projects

Emblem at 52 Odea Avenue Waterloo

Engineering Emblem Waterloo: Masterful Structural Diversity

As the lead structural engineering consultants for Emblem at 52 O’dea Avenue, Waterloo (developed by JQZ), JSBC Consulting played a critical role in bringing one of the Green Square precinct’s most dynamic residential developments to life.

This multi-award-winning project—recognized with a 2019 Award of Excellence for Best Tall Building — comprises 345 apartments spread across three distinct, highly customized structures (Buildings A, B, and C). These structures are unified by a massive common podium and a deep three-level subterranean basement.

JSBC provided unbroken structural delivery, executing the post-tensioning (PT) design, structural concept, detailed engineering, and site supervision from groundbreaking to final handover.

Here is how we engineered the complex, site-specific architectural features of Emblem Waterloo.

1. Building A: The 21-Storey Tower & The Mid-Air Sky Garden

The precinct’s centerpiece is a soaring 21-storey residential tower designed to capture panoramic views of the Sydney CBD and Botany Bay. The primary engineering challenge of this tower was its architectural “cutout”—a spectacular double-height sky garden located at Level 8.

Interrupting the Vertical Load Path:

Creating a two-storey void precisely one-third of the way up a high-rise tower fundamentally disrupts how gravity and wind loads travel down the building’s columns. JSBC engineered highly localized transfer beams to safely bridge this massive gap, capturing the immense weight of the 13 residential storeys above the garden and redistributing the loads seamlessly back into the lower structural grid.

Post-Tensioning Efficiency:

By integrating advanced post-tensioning design into the floor plates, we achieved thinner concrete slabs. This not only maximized floor-to-ceiling heights for the developer but also significantly reduced the overall dead weight bearing down on the lower levels.

2. Building C: The “Chopstick” Columns & Rooftop Pergola

Building C is an 8-storey structure defined by its striking architectural geometry, most notably its angled ground-level supports and exposed rooftop detailing.

Engineering the “Chopsticks”:

The base of Building C is supported by dramatic, angled “chopstick” columns. When columns are inclined, they generate lateral thrust forces (trying to push outwards) rather than just vertical gravity loads. JSBC designed heavily reinforced tie-back connections within the podium slabs to resist these horizontal forces, ensuring the building remains perfectly stable atop its raking supports.

The Concrete Pergola:

Crowning Building C is a unique, heavy-duty concrete rooftop pergola. Designing this feature required highly detailed off-form concrete engineering, ensuring the heavy structure was safely anchored against high wind uplift forces without compromising the building’s waterproofing membrane.

3. Building B: Supporting the Curved Brick Facade

Building B (8 storeys) introduces a completely different material language to the site with a beautiful, unique curved brick facade.

Deflection Control:

Masonry is incredibly sensitive to movement; if the supporting concrete floors sag over time, the brickwork will crack. JSBC engineered the slab edges on Building B with extremely tight deflection limits, designing continuous steel shelf angles cast directly into the concrete to support the curved brickwork safely across the entire 8-storey facade.

4. The Subterranean Challenge: 3 Basements in Waterloo

Waterloo is notorious for its high water table and challenging geotechnical conditions. Excavating and securing a 3-level basement required expert intervention.

Deep Excavation:

JSBC designed a robust shoring and retention system capable of managing intense lateral soil and hydrostatic (water) pressures. The foundation system was engineered to act as a fully watertight structure, securing the massive common podium above and anchoring all three diverse buildings safely into the ground.

Our team has extensive Tier 1 background experience

Vivacity Stage 2

Precision Engineering
for Landmark Developments

Vivacity Stage 2 - (5 Uhrig Road, Lidcombe)

Steel Framing over the Roof Plant Area

Engineering Vivacity Stage 2: Our Largest Mixed-Use Precinct

At its completion, Vivacity Stage 2 (5 Uhrig Road, Lidcombe) stood as the largest structural engineering project in JSBC Consulting’s history. Designed by BVN Architects, this monumental mixed-use precinct features 584 apartments across six towers—reaching up to 30 storeys—alongside a dedicated 7-storey commercial building.

1. The Structural Challenge: Scale & Integration

Delivering seven distinct buildings on a single site requires masterful structural coordination and highly efficient load management.

The Shared Podium:

The towers are anchored by a sprawling, landscaped ground-floor podium featuring a swimming pool. JSBC engineered a high-strength post-tensioned slab to safely support the immense dead loads of the water and deep-soil landscaping.

Load Transfers:

We designed a robust transfer system within the podium to capture the vertical gravity loads of the 30-storey towers above, funneling them safely around the commercial and retail space below to ensure highly leasable ground floors.

2. Mastering Structural Movement: Permanent Movement Joints (PMJs)

Connecting seven distinct buildings—ranging from a 7-storey commercial block to 30-storey residential towers—over a single massive subterranean footprint introduces extreme risks of building movement.

To prevent severe cracking, JSBC engineered strategic Permanent Movement Joints (PMJs) throughout the lower levels. These joints essentially decouple the heavy structures. By physically separating the slabs at critical junctions, we allowed each tower to move at its own rate, sway independently under high wind loads, and naturally expand or contract with temperature changes—all while functioning seamlessly as one unified precinct for the public.

An Axonometric View of the Structural Revit Model

Our team has extensive Tier 1 background experience

Ramsgate Park Kogarah

Precision Engineering for
Landmark Developments

200 Rocky Point Road Kogarah

Engineering Urban Renewal: Ramsgate Park Masterplan (Kogarah)

Located at 152-206 Rocky Point Road, Kogarah, the site of the iconic former Darrell Lea chocolate factory has been transformed into a visionary masterplanned community. As the lead structural engineers for the developer (JQZ), JSBC Consulting was responsible for the structural design and delivery of this sprawling, high-density residential precinct.

This massive development encompasses 534 luxury apartments spread across four distinct high-rise building blocks, alongside a separate collection of 20 two-level terrace-style townhouses.

Delivering a project of this scale required JSBC to provide end-to-end engineering continuity—from the initial structural concept and detailed design through to on-site supervision and final completion. Here is how we engineered this landmark urban renewal project.

1. The Common Podium & Central Green Space

The architectural heart of Ramsgate Park is its beautiful, expansive green open space, designed to foster a strong sense of community.

Heavy Load Engineering: Supporting significant landscaping, deep soil profiles, and public walkways above a subterranean structure requires immense load-bearing capacity. JSBC engineered a highly robust common podium slab that unites the four apartment blocks. This massive structural “deck” safely captures the heavy dead loads of the landscaping while providing a secure, waterproof roof for the two-level basement below.

2. Mastering Structural Efficiency at Scale

When engineering 534 apartments across four distinct towers, any inefficiency in the structural design is multiplied hundreds of times over, costing the developer significant time and money.

Optimized Load Paths & Grids: To maximize construction speed and material efficiency, JSBC focused on highly optimized vertical load paths and standardized structural grids. By aligning the structural core walls efficiently from the roof down through the residential floors directly into the basement car park, we minimized the need for additional expensive, heavy transfer structures. This streamlined the work cycle for the builder, significantly accelerating the construction timeline.

3. Multi-Format Housing: Towers and Townhouses

A unique challenge of the Ramsgate Park masterplan was the integration of vastly different building typologies on a single site.

Structural Adaptability: While the four main blocks required high-rise lateral stability systems (core walls and shear walls) to resist wind loading, the 20 terrace-style townhouses required a completely different, lighter structural approach. JSBC engineered tailored load-path solutions for both the high-density towers and the boutique townhouses, ensuring every structure on the site settled and performed perfectly over the shared basement levels.

4. Unbroken Project Delivery

Unlike firms that simply hand over the concepts, JSBC Consulting remained deeply involved throughout the entire lifecycle of the Ramsgate Park development.

Site Supervision & Inspections: Building a masterplanned community requires rigorous quality control. Our engineers were consistently on-site, conducting critical inspections. This ensured that the built structure perfectly matched our high-performance design specifications, guaranteeing a safe, durable asset for the Kogarah community.

Our team has extensive Tier 1 background experience

Railway Parade Carlton

Transforming Architectural
Visions into Structural Reality

280-298 Railway Parade Carlton

Delivering Phased Precincts: 280-298 Railway Parade, Carlton

As the lead structural engineers for 280-298 Railway Parade in Carlton, JSBC Consulting was engaged to deliver a multi-stage, mixed-use precinct that seamlessly blends modern commercial workspaces with high-density residential living.

Designing a staged development requires strategic foresight. Our engineering team had to ensure that the structural methodologies applied to Stage 1 would accommodate the site logistics and future construction phases of Stage 2.

Stage 1: The Commercial Hub & Rooftop Oasis (Construction Completed)

The first phase of the precinct is a newly completed five-storey commercial building. The architectural centerpiece of this structure is an expansive, landscaped rooftop terrace designed for tenant use.

Landscaping Load Engineering:
A rooftop garden is not just a patio; it represents a massive increase in structural demand. JSBC engineered a high-capacity roof slab to safely support the increased dead loads of the soil profiles, mature plantings, and water retention systems, alongside the higher live loads of commercial crowds. We utilized efficient post-tensioning to carry these heavy loads without requiring overly thick concrete slabs, maximizing the floor-to-ceiling heights in the offices below.

Stage 2: Residential Apartment Building (Structural Design Completed)

With the structural design now fully completed and ready for construction, Stage 2 transitions the site into a high-density residential phase.

Stage 1 near completion

Grid Transition:
Moving from an open-plan commercial structural grid (Stage 1) to a residential layout (Stage 2) demonstrates our team’s versatility. For the apartment building, JSBC focused heavily on structural efficiency—optimizing the vertical load paths, core layouts, and floor plates to maximize the net lettable area for the developer while ensuring rapid constructability for the builder.

Our team has extensive Tier 1 background experience

Melrose Park Stages 3

Complex Challenges
Intelligent Structural Solutions

Melrose Park Stages 3

Artist Impression of Project

Engineering Urban Communities: Melrose Park North Stage 3 (Pulse & Pavilion)

As a key stage in one of Sydney’s most significant urban renewal projects, Melrose Park North is transforming a 30-hectare site into a highly connected, environmentally friendly community.

Working alongside Tier-1 developer Sekisui House Australia, acclaimed architects AJ+C, and principal contractor Parkview, JSBC Consulting delivered the structural engineering for Stage 3 of this project. Completed in 2022 and valued at $60 million, this stage features 156 luxury apartments across two distinct buildings—Pulse and Pavilion—anchored by a shared podium and subterranean parking.

Delivering high-quality residential infrastructure within a massive, ongoing masterplan requires structural efficiency, rigorous site coordination, and highly optimized load management.

1. The Shared Podium: Engineering Community Spaces

The vision for Melrose Park North centers on creating active, socially connected spaces. For Pulse and Pavilion, this connectivity is physically realized through a large, unified ground-floor podium that bridges the two buildings.

Dynamic Load Management: A common podium serves as the structural “handshake” between the two residential towers and the public domain. JSBC engineered this massive slab to safely support heavily landscaped communal areas, pedestrian walkways, and deep-soil planting zones. By meticulously calculating the dead loads of these environmental features alongside the live loads of a bustling community, we ensured the podium provides a safe, vibrant, and durable platform for residents.

Photo of Completed Project
Master Plan and Site Location

2. Subterranean Infrastructure: The Two-Level Basement

Beneath the architectural elegance of the Pulse and Pavilion buildings lies a large, highly engineered two-level basement car park that spans the footprint of both structures.

Retention and Excavation: Excavating multiple basement levels requires a highly robust shoring and retention strategy to safely hold back lateral earth pressures while protecting adjacent stages of the masterplan. JSBC engineered an efficient perimeter retention system and foundation network that securely anchors the 156 apartments above, transferring their immense vertical loads seamlessly through the basement columns and into the bedrock.

3. Structural Efficiency and Constructability

On a $60 million development, time is money. JSBC focused heavily on structural efficiency to ensure the project met its strict 2022 completion deadline.

Optimized Vertical Load Paths: For the Pulse and Pavilion buildings, our team designed highly efficient concrete column grids. By aligning the structural core walls of apartments directly with the basement parking below, we minimized the need for heavy, expensive transfer structures. This highly rationalized load path streamlined the formwork cycle for Parkview, significantly accelerating the speed of construction without compromising the architectural vision.

Our team has extensive Tier 1 background experience

Foveaux St Surry Hills

Engineered Solutions
for Better Built Environments

53-55 Foveaux St Surry Hills

Lower level after renovation

Preserving History: Heritage Engineering at Foveaux Street, Surry Hills

Located in the heart of one of Sydney’s most vibrant creative precincts, 53-55 Foveaux Street is a classic two-storey, industrial-style heritage commercial building. JSBC Consulting was engaged to provide the structural engineering required to breathe new life into this historic property while meticulously preserving its raw, industrial character.

Working with heritage structures requires a surgical approach to engineering, balancing modern building codes with the preservation of century-old architectural fabric.

1. Structural Stabilization & Retrofitting

Century-old industrial buildings often suffer from degraded masonry, settling foundations, or load capacities that do not meet modern commercial standards.

Our team engineered a comprehensive structural stabilization strategy for the Foveaux Street property. This involved sensitive retrofitting techniques—such as reinforcing the existing masonry walls and upgrading the lateral stability of the two-storey structure—ensuring the building is safe and robust for its next century of commercial use without compromising its historic aesthetic.

Structural details from this project
Upper level after renovation

2. Showcasing the Exposed Timber Roof Trusses

The architectural highlight of the Foveaux Street renovation is the retention of its spectacular, original timber roof trusses.

Instead of hiding the structure behind modern ceilings, the design called for the existing trusses to remain fully exposed. JSBC conducted a structural assessments of the aged timber to verify its load-bearing capacity and discreet modifications as required.

Our team has extensive Tier 1 background experience